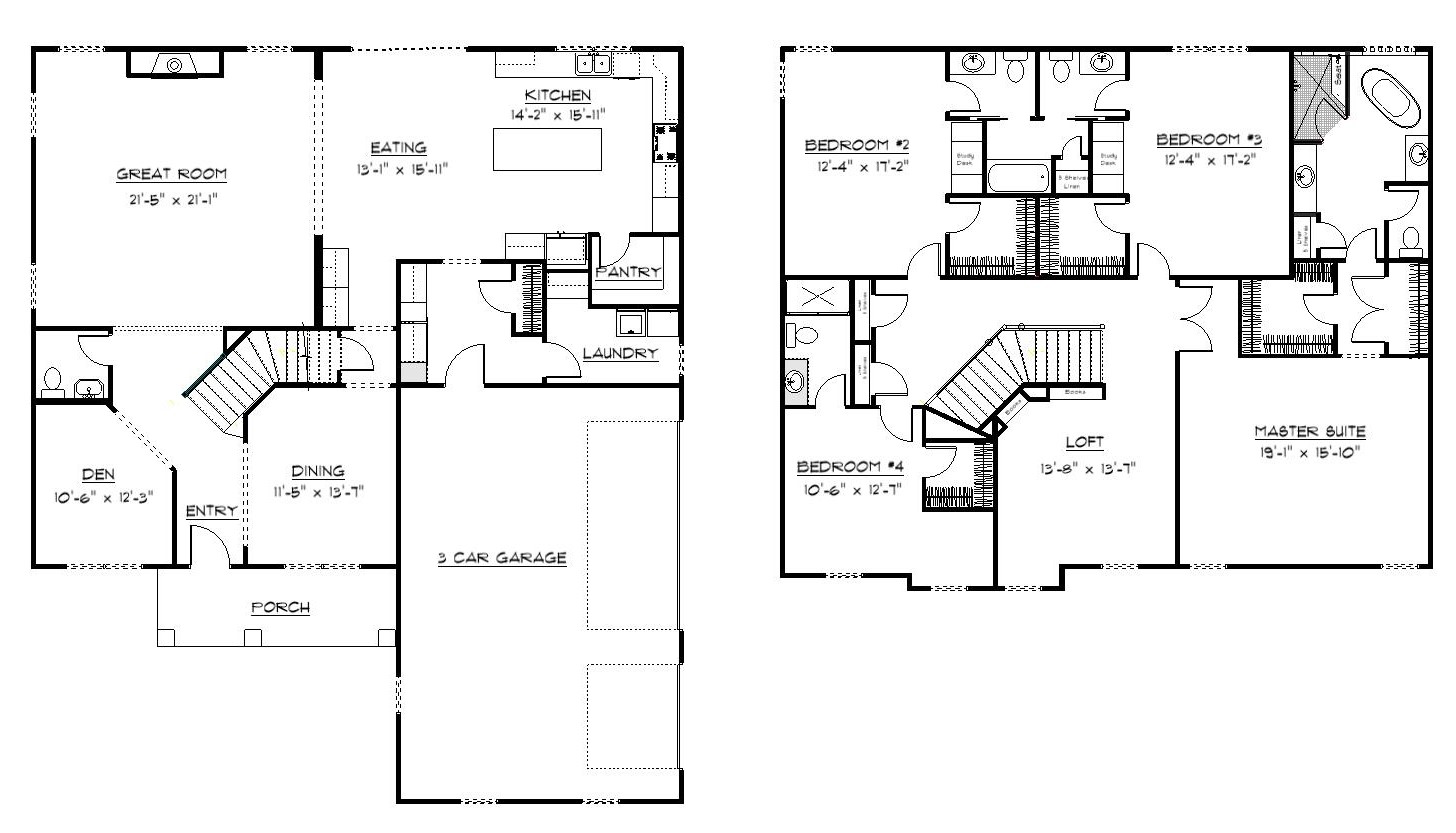
The Clinton

NOTE: Plans should be reviewed for conformity to local code and may require revisions to meet specific codes.

Custom Home Building camp logo